Стаття
Наукова стаття
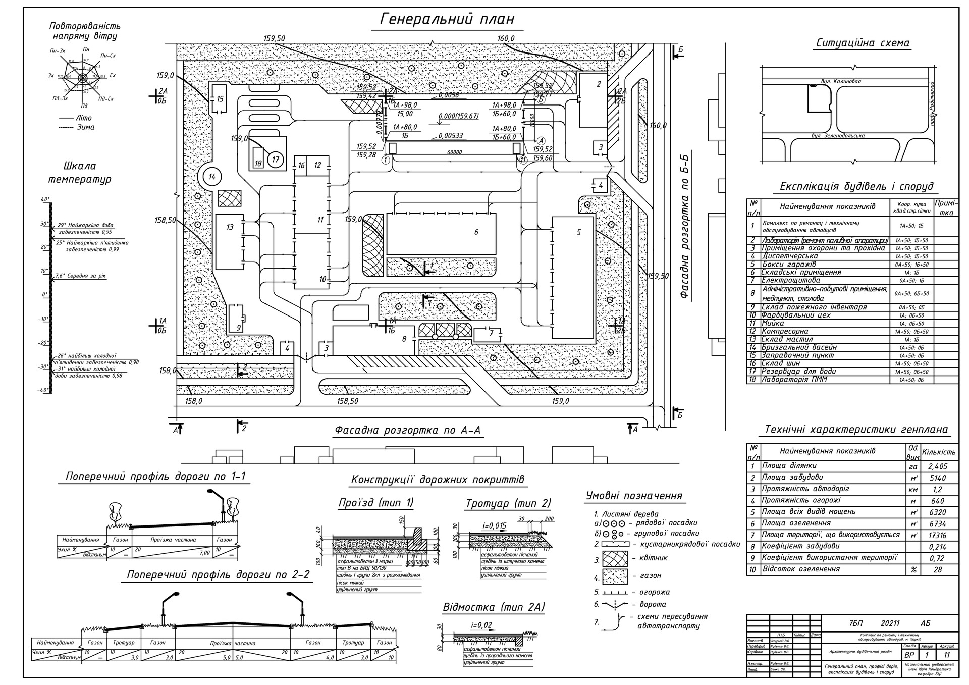
Комплекс по ремонту і технічному обслуговуванню автобусів, м. Харків
Item ID: 11623
1 Media file
2023/10/23
Copied to clipboard
