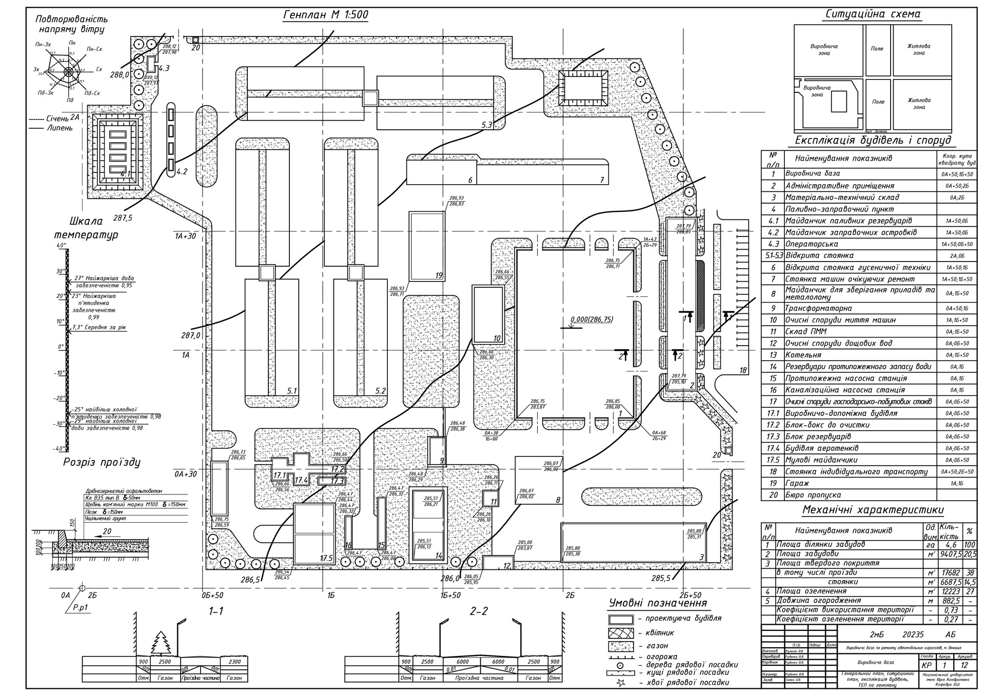
Виробнича база по ремонту автомобільних агрегатів, м. Вінниця
Item ID: 10379
1 Media file
2023/10/23
Copied to clipboard
