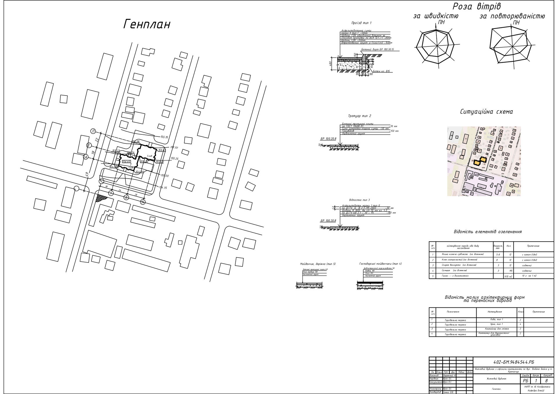
Житловий будинок з офісними приміщеннями по вул. Вадима Бойка у м. Кременчук

Item ID: 20395
1 Media file
2025/12/11
7. Бережний Андрій Андрійович